Residence Favier – Mogliano Veneto
Angolo tra Via Sciesa e Via Vanzo, MOGLIANO Veneto Previsione costruzione: Settembre 2024 – Aprile 2026
DESCRIZIONE IMMOBILE
Il nostro Residence Favier a Mogliano Veneto (TV), situato all’angolo tra Via Sciesa e Via Vanzo, si distingue per il suo contesto di prestigio, a pochi passi dalle principali piazze cittadine e dai relativi servizi.
Inserito in quello che un tempo fu il giardino dell’omonima villa storica, il Residence Favier conserva tracce del suo glorioso passato, come l’imponente e alta magnolia situata di fronte all’edificio, che garantisce una vista panoramica mozzafiato, soprattutto dalle ampie terrazze coperte a sud, che raggiungono quasi i 50 mq.
L’esclusività del Residence Favier è data anche dalle dimensioni moderate del contesto, composto da soli 4 appartamenti distribuiti su 3 piani fuori terra, con garage e posti auto esterni. L’alloggio al piano terra, così come i due al primo piano, sono appartamenti con 2 camere da letto. Il piano terra dispone di un ampio giardino rivolto principalmente a sud, mentre gli appartamenti al primo piano hanno terrazze rivolte rispettivamente a sud e a ovest.
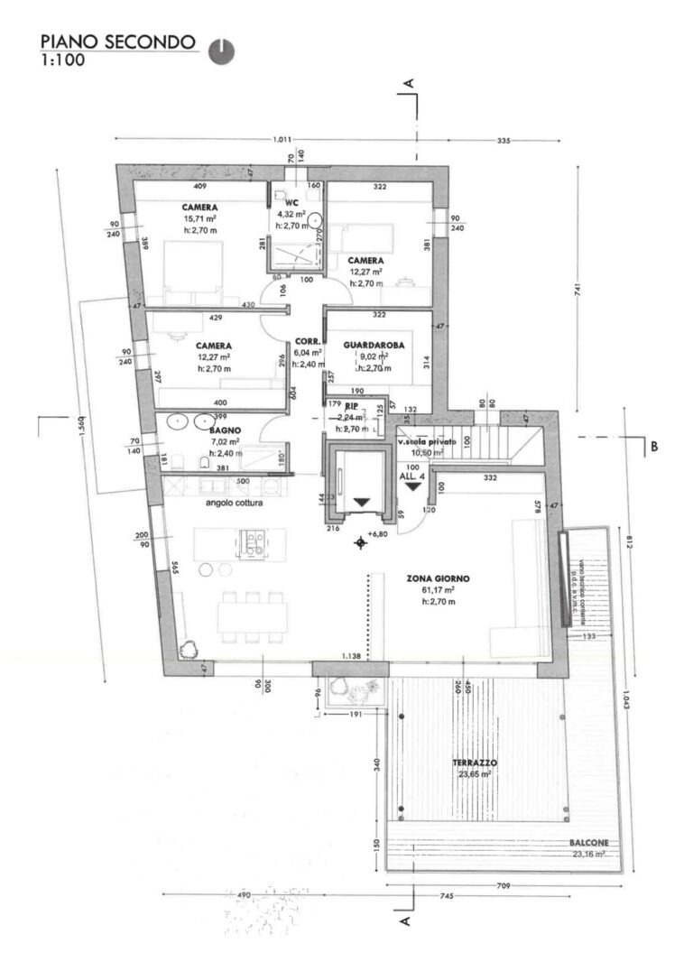
Il gioiello del Residence Favier è l’appartamento all’ultimo piano, con una superficie di circa 180 mq a cui si aggiungono altri 50 mq di terrazza. Questo appartamento è dotato di VMC (ventilazione meccanica controllata), ascensore con arrivo diretto in salotto, e un impianto fotovoltaico potenziato.
Tutti gli appartamenti saranno dotati di un impianto fotovoltaico privato, una pompa di calore privata e un impianto di accumulo dell’acqua calda sanitaria, garantendo così la classe energetica A4. La grande attenzione ai dettagli che mettiamo nei nostri edifici, unita al valore aggiunto della posizione, rendono il Residence Favier una realtà unica nel contesto moglianese.
Consegna prevista entro il 30 Aprile 2026.
L’attico dei tuoi sogni: spazi e design su misura (IN VENDITA)
Il nostro Residence Favier a Mogliano Veneto (TV), situato all’angolo tra Via Sciesa e Via Vanzo, si distingue per il suo contesto di prestigio, a pochi passi dalle principali piazze cittadine e dai relativi servizi.
Inserito in quello che un tempo fu il giardino dell’omonima villa storica, il Residence Favier conserva tracce del suo glorioso passato, come l’imponente e alta magnolia situata di fronte all’edificio, che garantisce una vista panoramica mozzafiato, soprattutto dalle ampie terrazze coperte a sud, che raggiungono quasi i 50 mq.
L’esclusività del Residence Favier è data anche dalle dimensioni moderate del contesto, composto da soli 4 appartamenti distribuiti su 3 piani fuori terra, con garage e posti auto esterni. L’alloggio al piano terra, così come i due al primo piano, sono appartamenti con 2 camere da letto. Il piano terra dispone di un ampio giardino rivolto principalmente a sud, mentre gli appartamenti al primo piano hanno terrazze rivolte rispettivamente a sud e a ovest.
CARATTERISTICHE TECNICHE
Tipologia: Piccolo Residence – n.4 appartamenti
Stato: Futura Costruzione
Città: Mogliano Veneto (TV) – Via Sciesa
Classe energetica: A4
Condizionatore: si
Serramenti: pvc con tapparelle elettriche
Riscaldamento: a pavimento
Garage: singolo, 1ad aloggio
Posto auto: sì, 1 ad alloggio
INFO E CONTATTI
Sei interessato all’acquisto?
Ricevi maggiori informazioni, compila i campi qui sotto e verrai contattato.
*Campi obbligatori



































